Top.Mail.Ru

Проект дома HT-191

Цена проекта от:
11 021 082 ₽
В кредит от 145 124 ₽/ мес. Кредит от Дом Клик и ДОМ РФ
Площадь помещений
191 м2
Летние помещения Летние помещения
40 м2
Материал стен
Камень
Размер дома
18.7 x 17.4 м
Этажность
1
Гараж
без гаража
Количество спален
4
Количество санузлов
3
Терраса
с террасой
Получить смету
Консультация по строительству:
+7 (499) 955-47-14
Описание

  • Дома площадью от 100 метров подходят для небольших семей. В их планировках есть все необходимые помещения для комфортного проживания — гостиная, кухня и несколько спален.
  • Этот дом имеет один этаж — это позволят быстрее и проще его построить.
  • Керамоблок — востребованный строительный материал наряду с газоблоком и кирпичом. Дома из керамоблока отличаются прочностью, долговечностью и устойчивостью к сезонным колебаниям климата. Керамоблок ценят за низкую теплопроводность и экологические качества.
  • Хай-тек характеризуется использованием передовых технологий и современных материалов, что создает современный и инновационный внешний вид дома. Открытые планировки, чистые линии и минималистичные формы являются характерными чертами этого стиля.
  • Размеры дома составляют 18,7 на 17,4 метров.
  • Дом без гаража предоставляет большую гибкость использования. Вы можете адаптировать это пространство под свои потребности, будь то дополнительная комната для гостей, спортивный зал, рабочий кабинет или студия.
  • Плоская крыша облегчает доступ к различным частям здания, таким как вентиляционные системы, солнечные панели, кондиционеры и другое оборудование. Это упрощает обслуживание и обследование таких систем, что может быть удобным и экономически выгодным для владельцев дома.
  • Крыльцо защитит вас от палящего солнца, дождя и ветра при выходе из дома.

Читать далее

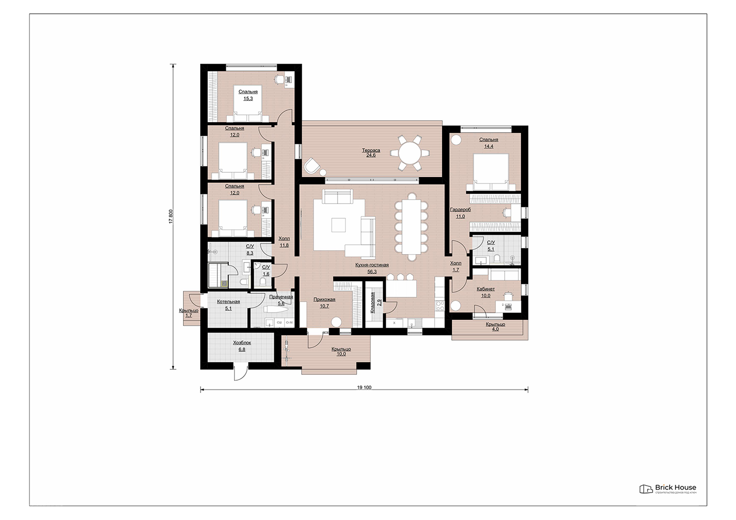
Планировка
Двухэтажные HT-191
1 этаж
Комплектация
Мы подобрали оптимальное решение для данного проекта. Если затрудняетесь с выбором, то свяжитесь с нами удобным для вас способом и мы подскажем самый выгодный вариант для Вас.
Комплектация
Можно изменить комплектацию и получить детальную смету
Коробка дома
11 021 082
Срок строительства:4 месяца
Дом с тепловым контуром
Срок строительства:6 месяцев
Дом под чистовую отделку
Срок строительства:12 месяцев
Фундамент
Свайно-ростверковый (одноэтажный дом)
+
+
+
Стены
Газоблок/керамоблок
+
+
+
Перекрытия
Сборные из бетонных плит (одноэтажные дома)
+
+
+
Кровля
Металлочерепица (одноэтажные дома)
+
+
+
Внутренние перегородки
Кирпич 120мм
-
+
+
Фасад
Штукатурка
-
+
+
Окна
ПВХ 4-х камерные Rehau
-
+
+
Двери
Входные двери
-
+
+
Инженерные коммуникации
-
-
+
Черновая отделка
-
-
+
Не знаете с чего начать?
Получите консультацию инженера-проектировщика
Нажимая на кнопку, вы соглашаетесь с обработкой ваших персональных данных

Что может повлиять на стоимость?

Подготовка участка к строительству – очень важный момент при составлении сметы. Иногда его особенности и расположение могут привести к дополнительным расходам.
Перепады на участке, грунты, грунтовые воды
Объем подготовительных строительных работ
Изменение конструктива и материалов
Расположение объекта

Категории проекта


«Брикхаус»
БЦ Парк Легенд, Автозаводская, 23А к.2 Москва ,
+7 (495) 792-75-83 , smeta@b-h-c.ru
У вас остались вопросы?
Закажите обратный звонок
Нажимая на кнопку, вы соглашаетесь с обработкой ваших персональных данных
Или позвоните по нашему телефону и менеджер ответит на все ваши вопросы:
+7 (495) 792-75-83