Top.Mail.Ru

Проект дома HT-309

Цена проекта:
от 26 637 408 ₽
В кредит от 350 759 ₽/ мес. Кредит от Дом Клик и ДОМ РФ
4 спальни
5 санузлов
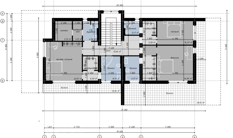
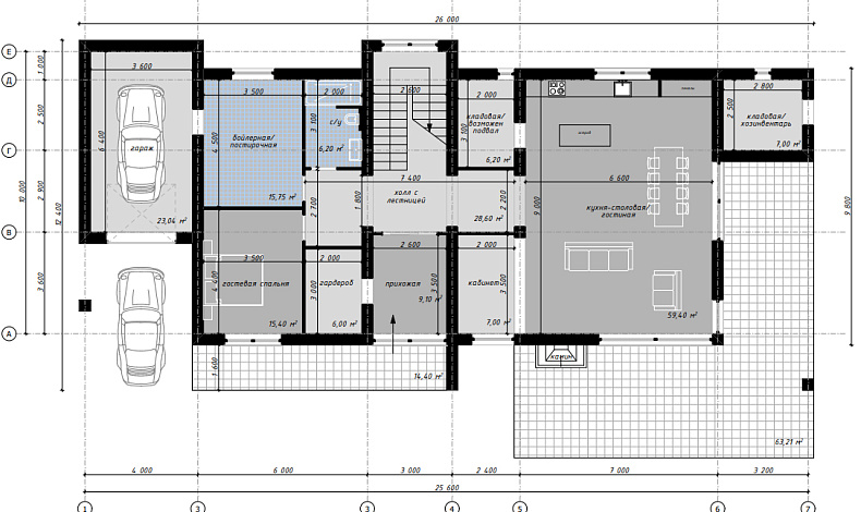
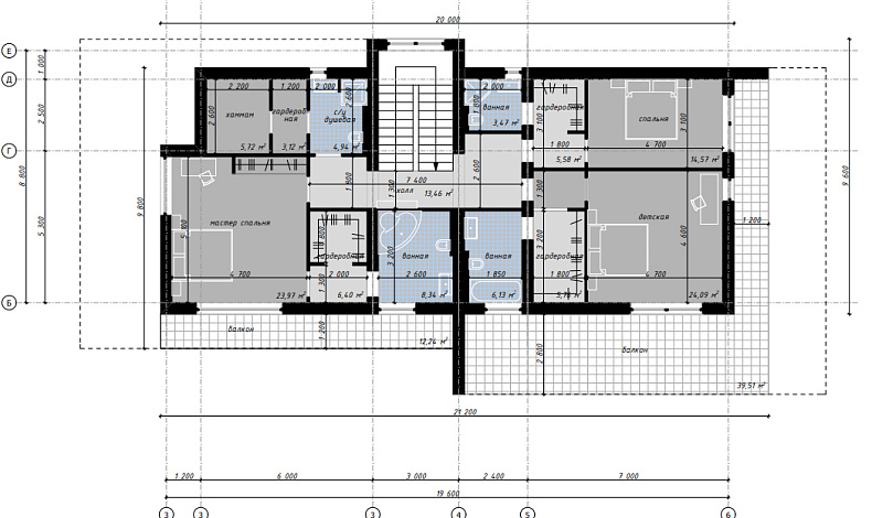
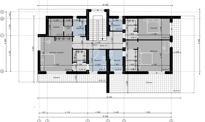
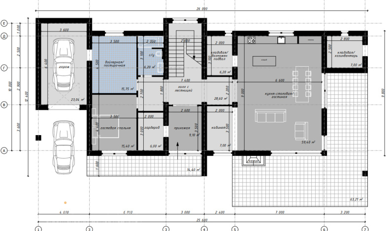
Площадь помещений
438 м2
Летние помещения
129 м2
Материал стен
Камень
Размер дома
25.6 x 12.4 м
Этажность
2
Гараж
с гаражом на 1 машину
Количество спален
4
Количество санузлов
5
Терраса
с террасой
Получить смету
Консультация по строительству:
+7 (495) 792-75-83

Описание

Размер дома 25.6 x 12.4 м
5 санузлов
4 спальни
2 этажа
  • Проекты домов 200 – 300 кв. м создаются для комфортного проживания больших семей
  • Двухэтажный дом — классическое решение для загородного дома. Два этажа позволяют легко разделить жилое пространство на функциональные зоны
  • Комбинированные дома — это сочетание древесины и камня. Нижний этаж — каменный, а верхний — из сруба. Из-за сочетания двух разных материалов такие дома всегда смотрятся оригинально
  • Дома в современном стиле обычно разрабатываются с учетом функциональности и эффективного использования пространства. Они предлагают хорошо продуманные планировки, оптимизированные для современного образа жизни. Это может включать открытые планировки, многофункциональные помещения, интегрированные системы хранения и другие элементы, которые делают жизнь в доме более комфортной и практичной
  • Размеры дома составляют 15,4 на 12,2 метров
  • Дом без гаража предоставляет большую гибкость использования. Вы можете адаптировать это пространство под свои потребности, будь то дополнительная комната для гостей, спортивный зал, рабочий кабинет или студия
  • Дома с плоской крышей характерны для стиля хай-тек. Эксплуатируемую плоскую кровлю можно использовать как террасу
  • Панорамные окна позволяют максимально использовать естественное освещение в доме. Они создают светлое и просторное ощущение внутри помещений, позволяют проникать большому количеству дневного света и снижают зависимость от искусственного освещения. Это помогает создать более комфортную и приятную атмосферу
Показать еще
Комплектация
Мы подобрали оптимальное решение для данного проекта. Если затрудняетесь с выбором, то свяжитесь с нами удобным для вас способом и мы подскажем самый выгодный вариант для Вас.
Комплектация
Можно изменить комплектацию и получить детальную смету
Коробка дома
26 637 408 ₽
Срок строительства:4 месяца
Дом с тепловым контуром
Срок строительства:6 месяцев
Дом под чистовую отделку
Срок строительства:12 месяцев
Фундамент
Свайно-ростверковый
+
+
+
Стены
Газоблок/керамоблок
+
+
+
Перекрытия
Монолитная плита
+
+
+
Кровля
ПВХ-мембрана
+
+
+
Внутренние перегородки
Кирпич 120мм
-
+
+
Фасад
Штукатурка
-
+
+
Окна
ПВХ 4-х камерные Rehau
-
+
+
Двери
Входные двери
-
+
+
Инженерные коммуникации
-
-
+
Черновая отделка
-
-
+
Коробка
Тепловой контур
Чистовая отделка
Коробка дома
26 637 408 ₽
Срок строительства: 4 месяца
Фундамент
Свайно-ростверковый
+
Стены
Газоблок/керамоблок
+
Перекрытия
Монолитная плита
+
Кровля
ПВХ-мембрана
+
Внутренние перегородки
Кирпич 120мм
-
Фасад
Штукатурка
-
Окна
ПВХ 4-х камерные Rehau
-
Двери
Входные двери
-
Инженерные коммуникации
-
Черновая отделка
-
Дом с тепловым контуром
Срок строительства: 6 месяцев
Фундамент
Свайно-ростверковый
+
Стены
Газоблок/керамоблок
+
Перекрытия
Монолитная плита
+
Кровля
ПВХ-мембрана
+
Внутренние перегородки
Кирпич 120мм
+
Фасад
Штукатурка
+
Окна
ПВХ 4-х камерные Rehau
+
Двери
Входные двери
+
Инженерные коммуникации
-
Черновая отделка
-
Дом под чистовую отделку
Срок строительства: 12 месяцев
Фундамент
Свайно-ростверковый
+
Стены
Газоблок/керамоблок
+
Перекрытия
Монолитная плита
+
Кровля
ПВХ-мембрана
+
Внутренние перегородки
Кирпич 120мм
+
Фасад
Штукатурка
+
Окна
ПВХ 4-х камерные Rehau
+
Двери
Входные двери
+
Инженерные коммуникации
+
Черновая отделка
+

Что может повлиять на стоимость?

Подготовка участка к строительству – очень важный момент при составлении сметы. Иногда его особенности и расположение могут привести к дополнительным расходам.
Перепады на участке, грунты, грунтовые воды
Объем подготовительных строительных работ
Изменение конструктива и материалов
Расположение объекта
Не знаете с чего начать?
Получите бесплатную консультацию инженера-проектировщика

Категории проекта

5x6
6x9
5x6
6x6
6x8
6x9
7x7
7x8
5x6
6x6
6x8
6x9
7x7
7x8
5x6
6x6
6x8
6x9
7x7
7x8
5x6
6x6
6x8
6x9
7x7
7x8
Показать еще
Показать меньше

«Брикхаус»
БЦ Парк Легенд, Автозаводская, 23А к.2 Москва ,
+7 (495) 792-75-83 , smeta@b-h-c.ru
У вас остались вопросы?
Закажите обратный звонок
Или позвоните по нашему телефону и менеджер ответит на все ваши вопросы: