Top.Mail.Ru
https://www.high-endrolex.com/48

Проектирование

Проектирование

Стоимость проектирования :
375 000 ₽
Срок проектирования:
60 дней
Площадь:
410 м2
Стоимость проектирования
375 000 ₽
Площадь дома: 
410 м2
Срок проектирования
60 дней
Двухэтажный дом в стиле хай-тек с цокольным этажом строится в подмосковной деревне Никольское. Нам достался участок со сложным рельефом, где перепады высот достигают 5 метров. Подъезд спецтехники осложняется большим уклоном и узким въездом. Наша главная задача – воплотить в жизнь все задумки архитектора, который решил не «бороться» с рельефом, а гармонично вписать в него прое...
Стоимость проектирования :
300 000 ₽
Срок проектирования:
45 дней
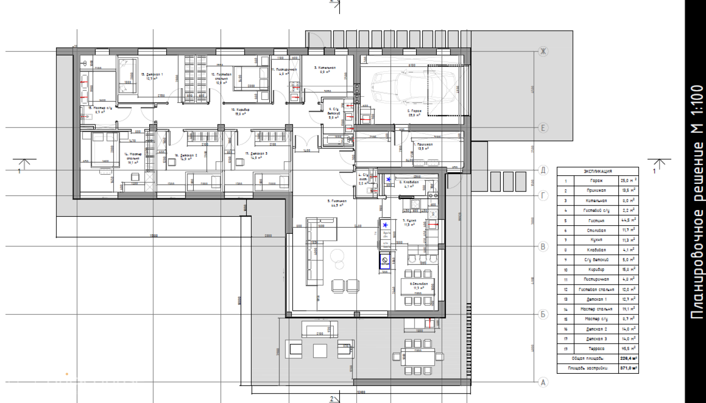
Площадь:
226 м2
Стоимость проектирования
300 000 ₽
Площадь дома: 
226 м2
Срок проектирования
45 дней
В этом проекте белоснежные фасады, дополненные вставками из планкена, сразу привлекают к себе внимание. Дом спроектирован для большой семьи, в нем три детских, гостевая и мастер-спальня. Комнаты образуют единую спальную зону, не пересекаясь с жилой. Гостиная площадью 44,5 м2 объединена с кухней и столовой.
Стоимость проектирования :
624 000 ₽
Срок проектирования:
60 дней
Площадь:
399 м2
Стоимость проектирования
624 000 ₽
Площадь дома: 
399 м2
Срок проектирования
60 дней
Двухэтажный особняк в стиле хай-тек с большим уличным бассейном, двухуровневой террасой и роскошной винтовой лестницей мы строим в Тверской области. Проект отличается масштабностью и простором помещений. Зона гостиной и кухни-столовой со вторым светом оформлена стеклянным фасадом высотой в два этажа. В зоне СПА вместе джакузи и сауной есть винная комната. На втором этаже разм...
Стоимость проектирования :
654 600 ₽
Срок проектирования:
60 дней
Площадь:
850 м2
Стоимость проектирования
654 600 ₽
Площадь дома: 
850 м2
Срок проектирования
60 дней
Роскошный коттедж с плоской крышей в стиле хай-тек спроектирован для участка с перепадами высот. Дом расположен на двух уровнях с разной высотой. В нижней части первого этажа зона СПА с бассейном, сауной, хаммамом и бильярдной. Чуть выше – основная жилая зона, кабинет, гараж и комнаты для персонала. В гостиной есть второй свет. На втором этаже разместились хозяйская спальня, ...
Стоимость проектирования :
300 000 ₽
Срок проектирования:
45 дней
Площадь:
308 м2
Стоимость проектирования
300 000 ₽
Площадь дома: 
308 м2
Срок проектирования
45 дней
Отличный вариант одноэтажного хай-тека площадью 308 м2 с интересной архитектурой и разноуровневой плоской крышей. Большая площадь панорамного остекления, комбинированный фасад, отделанный металлом, фиброцементными панелями и деревянными рейками придают ему ультрасовременный вид.
Стоимость проектирования :
442 500 ₽
Срок проектирования:
60 дней
Площадь:
268 м2
Стоимость проектирования
442 500 ₽
Площадь дома: 
268 м2
Срок проектирования
60 дней
Большой камин в центре гостиной, сауна, бассейн и летняя столовая под навесом – в этом проекте сошлись воедино все привилегии загородной жизни. У дома интересная архитектура. Он словно сложен из двух разных по величине блоков. Конструктивно это достигается за счет того, что площадь второго этажа в 3,5 раза меньше первого. Принцип деления на блоки выдерживается и в комбинирова...
Стоимость проектирования :
412 500 ₽
Срок проектирования:
60 дней
Площадь:
283 м2
Стоимость проектирования
412 500 ₽
Площадь дома: 
283 м2
Срок проектирования
60 дней
Площадь мастер-спальни в этом доме больше, чем у кухни-гостиной – 41 квадратный метр. Заказчики этого проекта решили не отказывать себе в качественном отдыхе и попросили спроектировать для них роскошную спальную зону с отдельной гардеробной в 22 кв.м. и мастер-ванной на 20 кв.м. На первом этаже расположена общая зона со свободной планировкой – в единое пространство объединены...
Стоимость проектирования :
645 600 ₽
Срок проектирования:
60 дней
Площадь:
538 м2
Стоимость проектирования
645 600 ₽
Площадь дома: 
538 м2
Срок проектирования
60 дней
Большой уютный особняк в стиле Райта с бассейном – настоящая мечта для любой семьи. На 538 квадратных метрах, кажется, есть все, чтобы в полной мере наслаждаться загородной жизнью. Огромная гостиная с камином, 4 спальни, игровая, кабинет, мастерская, сауна и хаммам. И еще несколько просторных помещений для хранения, предназначенных для продуктовых запасов и хозяйственного инв...
Стоимость проектирования :
567 600 ₽
Срок проектирования:
60 дней
Площадь:
473 м2
Стоимость проектирования
567 600 ₽
Площадь дома: 
473 м2
Срок проектирования
60 дней
Несмотря на то, что дом двухэтажный, почти вся его жилая зона расположена на первом этаже. Вместе с гостиной, столовой и кухней здесь разместились мастер-спальня, две детские, кабинет и подсобные помещения. Второй этаж хозяева дома решили отдать под зону релакса, большую библиотеку и спортзал. Изюминкой проекта стала антресоль, попасть на которую можно из гостиной, и фасад с ...
Стоимость проектирования :
428 400 ₽
Срок проектирования:
60 дней
Площадь:
357 м2
Стоимость проектирования
428 400 ₽
Площадь дома: 
357 м2
Срок проектирования
60 дней
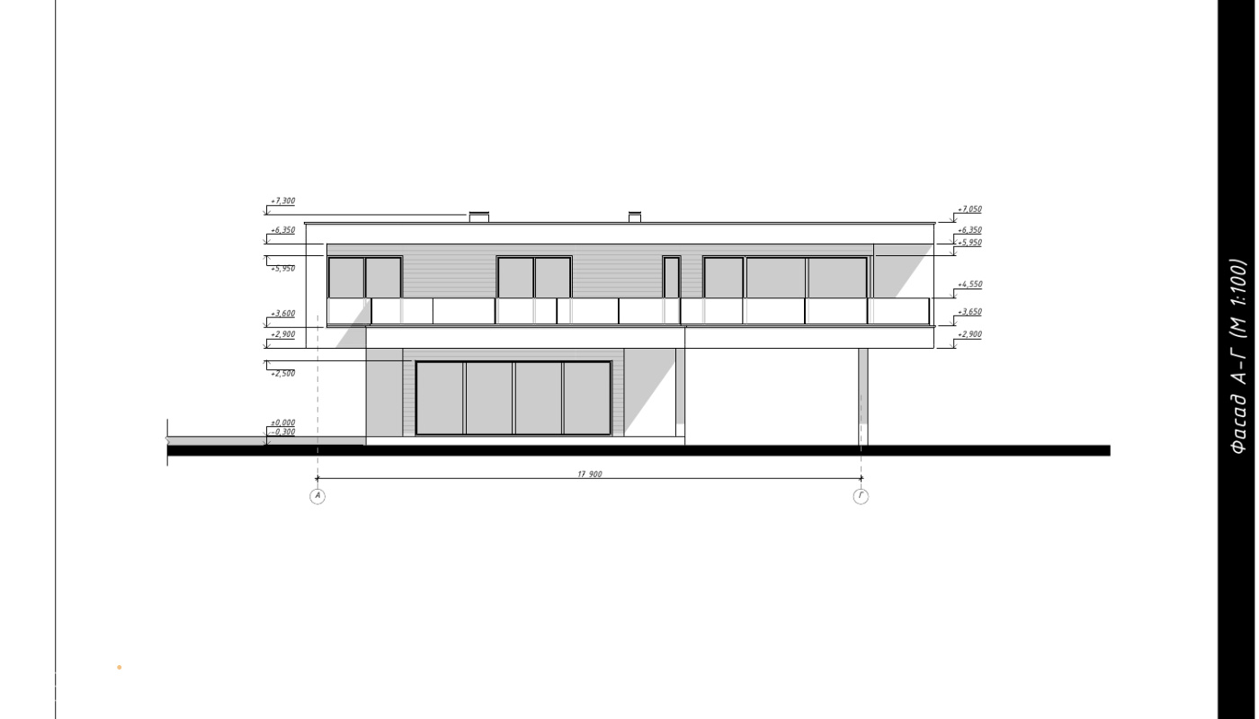
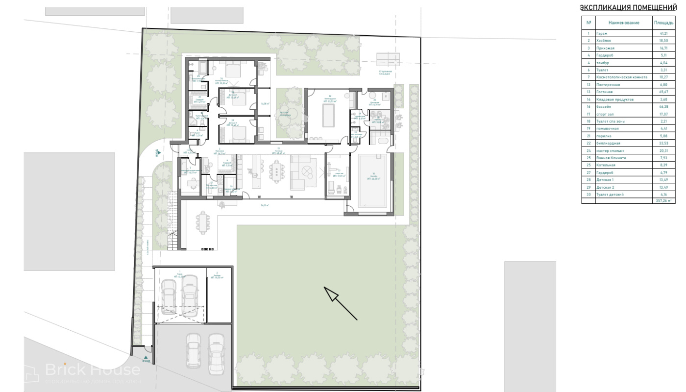
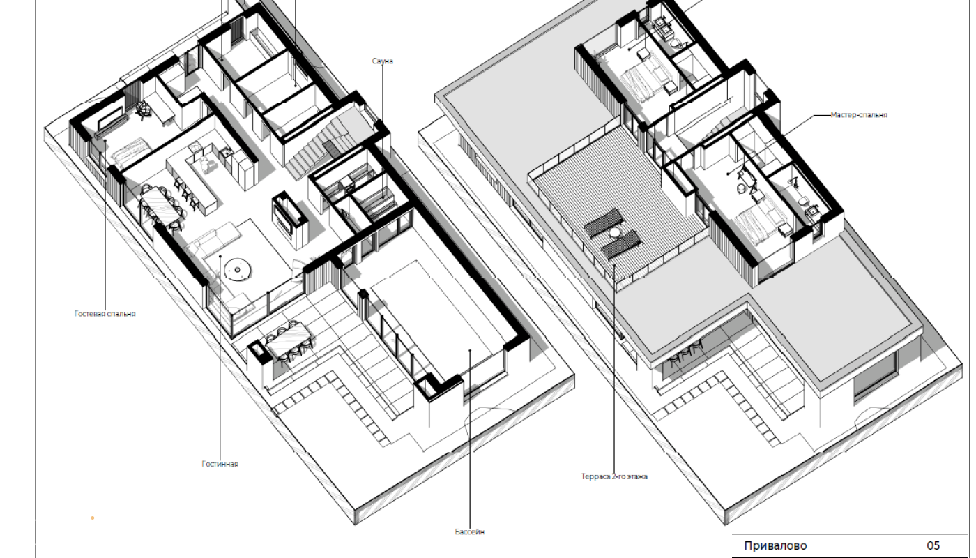
В последнее время одноэтажные дома становятся все популярнее среди заказчиков. На 357 кв. метрах этого коттеджа помимо гостиной и кухни-столовой расположились мастер-спальня и две детских комнаты. В другой части дома размещена СПА-зона. Здесь есть сауна, крытый бассейн, бильярдная и тренажерный зал. В доме также предусмотрена отдельная комната, задействованная под косметологи...
Стоимость проектирования :
499 200 ₽
Срок проектирования:
60 дней
Площадь:
416 м2
Стоимость проектирования
499 200 ₽
Площадь дома: 
416 м2
Срок проектирования
60 дней
Посмотрите, как в этом доме интересно расположен второй этаж относительно первого. Благодаря такой задумке архитектора наверху получилась просторная терраса. Здесь можно расставить мебель, светильники и устроить очень уютную зону отдыха под открытым небом. С нее открывается чудесный вид на природу и уличный бассейн.
Стоимость проектирования :
664 800 ₽
Срок проектирования:
60 дней
Площадь:
554 м2
Стоимость проектирования
664 800 ₽
Площадь дома: 
554 м2
Срок проектирования
60 дней
Интересная архитектура этого дома с широкими свесами, колоннами, панорамным остеклением и плоской крышей удачно обыграна светлым фасадом из декоративной штукатурки и вставками из планкена. При этом темные двери и оконные рамы подчеркивают четкость линий и строгость форм хай-тека.
Стоимость проектирования :
118 800 ₽
Срок проектирования:
120 дней
Площадь:
297 м2
Стоимость проектирования
118 800 ₽
Площадь дома: 
297 м2
Срок проектирования
120 дней
Одноэтажный дом в стиле хай-тек просторный и функциональный. В нем предусмотрены  пять спален, три санузла, гардеробная, кладовая и небольшой открытый бассейн. А интересное сочетание материалов для фасада из штукатурки, бетона и дерева выгодно подчеркивает его оригинальность.
Стоимость проектирования :
130 000 ₽
Срок проектирования:
150 дней
Площадь:
325,60 м2
Стоимость проектирования
130 000 ₽
Площадь дома: 
325,60 м2
Срок проектирования
150 дней
Просторный дом в стиле Райта по проекту отличается своей представительностью и презентабельным внешним видом. Этот эффект достигается за счет удачной комбинации отделочных материалов фасада: камня, кирпича и лиственницы. Особняк бизнес-класса включает 5 просторных спален, 2 санузла и большой теплый гараж с навесом.
Стоимость проектирования :
140 000 ₽
Срок проектирования:
210 дней
Площадь:
350 м2
Стоимость проектирования
140 000 ₽
Площадь дома: 
350 м2
Срок проектирования
210 дней
Роскошный особняк площадью 350 м2 спроектирован в лучших традициях восточных дворцов: с просторными залами, вторым светом и остекленными колоннами, отдаленно напоминающими минареты. В отделке фасада дома использован натуральный камень. Дом элегантен снаружи, а внутри просторен и удобен. Например, гараж, расположенный в периметре дома, позволит садиться в теплый автомобиль даж...
Стоимость проектирования :
48 000 ₽
Срок проектирования:
120 дней
Площадь:
120 м2
Стоимость проектирования
48 000 ₽
Площадь дома: 
120 м2
Срок проектирования
120 дней
Дом в голландском стиле – новинка в архитектуре загородных домов. Компактный, с интересным дизайном, он будет выигрышно выделяться на фоне других. При этом внутри он так грамотно спроектирован, что неиспользованным не остается ни один квадратный метр. Несколько спален, кабинет, гардеробные и прачечная и даже кладовая комнаты позволяют этому дому стать достойны жилищем для бол...
Стоимость проектирования :
151 200 ₽
Срок проектирования:
150 дней
Площадь:
378,2 м2
Стоимость проектирования
151 200 ₽
Площадь дома: 
378,2 м2
Срок проектирования
150 дней
Стильный проект дома хай-тек понравится тем, кто предпочитает нестандартную архитектуру. Необычен в этом коттедже и дизайн фасада. Выполненный в  темных тонах, он приобретает респектабельность, независимость и подчеркнутую современность. Этот проект был выполнен под ключ с нуля за 2 месяца. Разработано уникальное архитектурное решение, согласованы удобные планировки...
Стоимость проектирования :
86 000 ₽
Срок проектирования:
120 дней
Площадь:
215,2 м2
Стоимость проектирования
86 000 ₽
Площадь дома: 
215,2 м2
Срок проектирования
120 дней
У этого дома весьма удачная планировка: на сравнительно небольшой площади расположены гостиная, 5 спален, 2 санузла, кабинет, лоджия и несколько жилых помещений. Внешний облик дома выдержан в приятном современном стиле. Большая площадь остекления делает дом очень светлым внутри.
Показать еще
Не подходят типовые проекты?
Наши специалисты разработают дизайн-проект специально для Вас!

Сколько стоит построить дом?

Как правильно строить дом?

https://www.high-endrolex.com/48
«Брикхаус»
БЦ Парк Легенд, Автозаводская, 23А к.2 Москва ,
+7 (495) 792-75-83 , smeta@b-h-c.ru
У вас остались вопросы?
Закажите обратный звонок
Нажимая на кнопку, вы соглашаетесь с обработкой ваших персональных данных
Или позвоните по нашему телефону и менеджер ответит на все ваши вопросы:
+7 (495) 792-75-83
https://www.high-endrolex.com/48