Top.Mail.Ru

Проект HT-357

Стоимость проектирования:
428 400 ₽
Срок проектирования:
60 дней
Получить смету
В кредит за 5 641 ₽ в месяц
Подробные условия
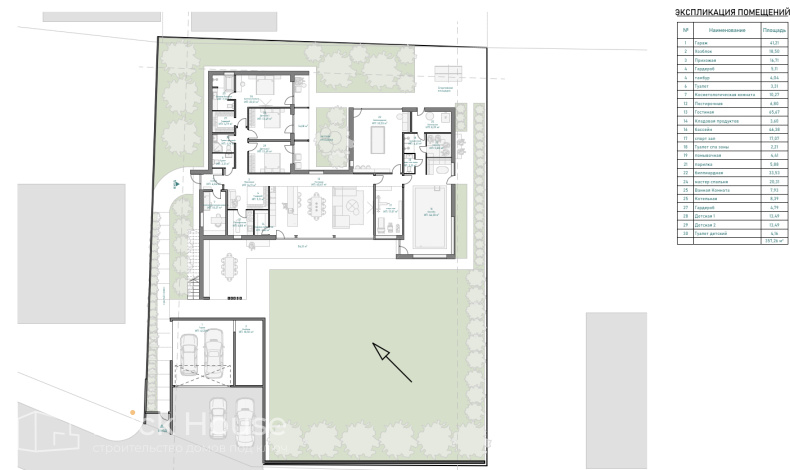
В последнее время одноэтажные дома становятся все популярнее среди заказчиков. На 357 кв. метрах этого коттеджа помимо гостиной и кухни-столовой расположились мастер-спальня и две детских комнаты. В другой части дома размещена СПА-зона. Здесь есть сауна, крытый бассейн, бильярдная и тренажерный зал. В доме также предусмотрена отдельная комната, задействованная под косметологический кабинет.
«Брикхаус»
БЦ Парк Легенд, Автозаводская, 23А к.2 Москва ,
+7 (495) 792-75-83 , smeta@b-h-c.ru
У вас остались вопросы?
Закажите обратный звонок
Нажимая на кнопку, вы соглашаетесь с обработкой ваших персональных данных
Или позвоните по нашему телефону и менеджер ответит на все ваши вопросы:
+7 (495) 792-75-83