Top.Mail.Ru
https://www.high-endrolex.com/48

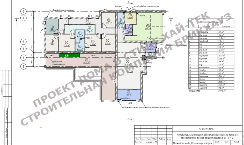
Проект Артек

Стоимость проектирования:
118 800 ₽
Срок проектирования:
120 дней
Получить смету
В кредит за 1 564 ₽ в месяц
Подробные условия
Одноэтажный дом в стиле хай-тек просторный и функциональный. В нем предусмотрены пять спален, три санузла, гардеробная, кладовая и небольшой открытый бассейн. А интересное сочетание материалов для фасада из штукатурки, бетона и дерева выгодно подчеркивает его оригинальность.
https://www.high-endrolex.com/48
«Брикхаус»
БЦ Парк Легенд, Автозаводская, 23А к.2 Москва ,
+7 (495) 792-75-83 , smeta@b-h-c.ru
У вас остались вопросы?
Закажите обратный звонок
Нажимая на кнопку, вы соглашаетесь с обработкой ваших персональных данных
Или позвоните по нашему телефону и менеджер ответит на все ваши вопросы:
+7 (495) 792-75-83
https://www.high-endrolex.com/48