Top.Mail.Ru

Проект HT-410

Стоимость проектирования:
375 000 ₽
Срок проектирования:
60 дней
Получить смету
В кредит за 4 938 ₽ в месяц
Подробные условия
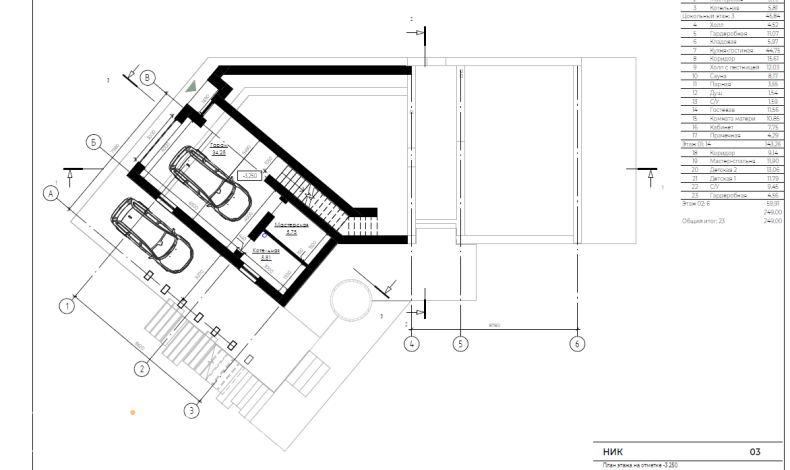
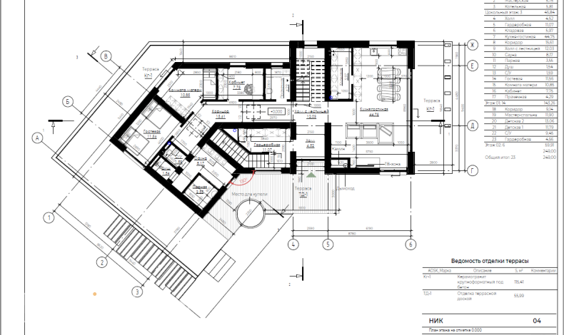
Двухэтажный домв стиле хай-тек с цокольным этажом строится в подмосковной деревне Никольское. Нам достался участок со сложным рельефом, где перепады высот достигают 5 метров. Подъезд спецтехники осложняется большим уклоном и узким въездом. Наша главная задача – воплотить в жизнь все задумки архитектора, который решил не «бороться» с рельефом, а гармонично вписать в него проект. Дом будет строиться из керамических блоков. В отделке фасада используются штукатурка, планкен и фасадные панели.
«Брикхаус»
набережная Марка Шагала, 1к2 Москва ,
+7 (495) 792-75-83 , smeta@b-h-c.ru
У вас остались вопросы?
Закажите обратный звонок
Или позвоните по нашему телефону и менеджер ответит на все ваши вопросы:

Получить смету

Оставьте заявку и мы свяжемся с вами в рабочее время с 08:00 до 20:00

Укажите, пожалуйста, имя
Подтвердите, что вы не робот

Заказать звонок

Оставьте заявку и мы свяжемся с вами в рабочее время с 08:00 до 20:00

Укажите, пожалуйста, имя
Подтвердите, что вы не робот

Изменить планировку

Оставьте заявку и мы свяжемся с вами в рабочее время с 08:00 до 20:00

Укажите, пожалуйста, имя
Подтвердите, что вы не робот

Заявка отправлена

Ваша заявка успешно отправлена! Пожалуйста, ожидайте звонка нашего менеджера!