Top.Mail.Ru

Проект дома RH-276

Цена проекта:
от 16 990 848 ₽
В кредит от 223 734 ₽/ мес. Кредит от Дом Клик и ДОМ РФ
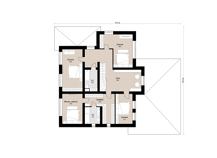
3 спальни
4 санузла
Площадь помещений
294 м2
Летние помещения
36 м2
Материал стен
Камень
Размер дома
18.6 х 15.5 м
Этажность
2
Гараж
без гаража
Количество спален
3
Количество санузлов
4
Терраса
с террасой
Получить смету
Консультация по строительству:
+7 (495) 792-75-83

Описание

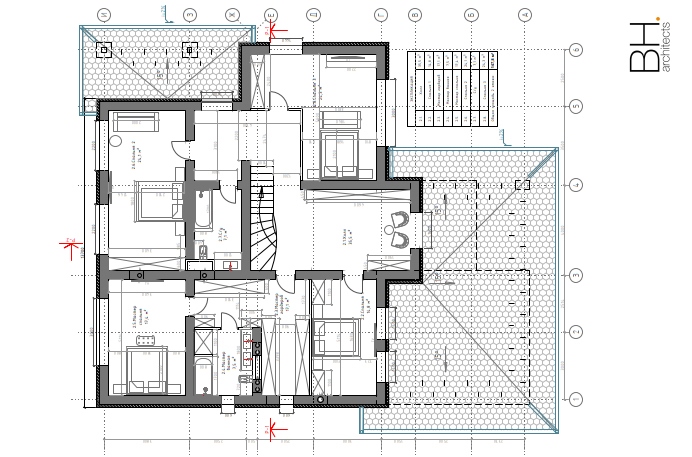
Размер дома 18.6 х 15.5 м
4 санузла
3 спальни
2 этажа
  • Проекты домов 200 – 300 кв. м создаются для комфортного проживания больших семей
  • Двухэтажный дом — классическое решение для загородного дома. Два этажа позволяют легко разделить жилое пространство на функциональные зоны
  • Комбинированные дома — это сочетание древесины и камня. Нижний этаж — каменный, а верхний — из сруба. Из-за сочетания двух разных материалов такие дома всегда смотрятся оригинально
  • Дома в современном стиле обычно разрабатываются с учетом функциональности и эффективного использования пространства. Они предлагают хорошо продуманные планировки, оптимизированные для современного образа жизни. Это может включать открытые планировки, многофункциональные помещения, интегрированные системы хранения и другие элементы, которые делают жизнь в доме более комфортной и практичной
  • Размеры дома составляют 15,4 на 12,2 метров
  • Дом без гаража предоставляет большую гибкость использования. Вы можете адаптировать это пространство под свои потребности, будь то дополнительная комната для гостей, спортивный зал, рабочий кабинет или студия
  • Дома с плоской крышей характерны для стиля хай-тек. Эксплуатируемую плоскую кровлю можно использовать как террасу
  • Панорамные окна позволяют максимально использовать естественное освещение в доме. Они создают светлое и просторное ощущение внутри помещений, позволяют проникать большому количеству дневного света и снижают зависимость от искусственного освещения. Это помогает создать более комфортную и приятную атмосферу
Показать еще
Комплектация
Мы подобрали оптимальное решение для данного проекта. Если затрудняетесь с выбором, то свяжитесь с нами удобным для вас способом и мы подскажем самый выгодный вариант для Вас.
Комплектация
Можно изменить комплектацию и получить детальную смету
Коробка дома
16 990 848 ₽
Срок строительства:4 месяца
Дом с тепловым контуром
Срок строительства:6 месяцев
Дом под чистовую отделку
Срок строительства:12 месяцев
Фундамент
Свайно-ростверковый
+
+
+
Стены
+
+
+
Перекрытия
Монолитная плита
+
+
+
Кровля
Металлочерепица
+
+
+
Внутренние перегородки
Кирпич 120мм
-
+
+
Фасад
Штукатурка
-
+
+
Окна
ПВХ 4-х камерные Rehau
-
+
+
Двери
Входные двери
-
+
+
Инженерные коммуникации
-
-
+
Черновая отделка
-
-
+
Коробка
Тепловой контур
Чистовая отделка
Коробка дома
16 990 848 ₽
Срок строительства: 4 месяца
Фундамент
Свайно-ростверковый
+
Стены
+
Перекрытия
Монолитная плита
+
Кровля
Металлочерепица
+
Внутренние перегородки
Кирпич 120мм
-
Фасад
Штукатурка
-
Окна
ПВХ 4-х камерные Rehau
-
Двери
Входные двери
-
Инженерные коммуникации
-
Черновая отделка
-
Дом с тепловым контуром
Срок строительства: 6 месяцев
Фундамент
Свайно-ростверковый
+
Стены
+
Перекрытия
Монолитная плита
+
Кровля
Металлочерепица
+
Внутренние перегородки
Кирпич 120мм
+
Фасад
Штукатурка
+
Окна
ПВХ 4-х камерные Rehau
+
Двери
Входные двери
+
Инженерные коммуникации
-
Черновая отделка
-
Дом под чистовую отделку
Срок строительства: 12 месяцев
Фундамент
Свайно-ростверковый
+
Стены
+
Перекрытия
Монолитная плита
+
Кровля
Металлочерепица
+
Внутренние перегородки
Кирпич 120мм
+
Фасад
Штукатурка
+
Окна
ПВХ 4-х камерные Rehau
+
Двери
Входные двери
+
Инженерные коммуникации
+
Черновая отделка
+

Что может повлиять на стоимость?

Подготовка участка к строительству – очень важный момент при составлении сметы. Иногда его особенности и расположение могут привести к дополнительным расходам.
Перепады на участке, грунты, грунтовые воды
Объем подготовительных строительных работ
Изменение конструктива и материалов
Расположение объекта
Не знаете с чего начать?
Получите бесплатную консультацию инженера-проектировщика

Категории проекта

Показать еще
Показать меньше

«Брикхаус»
БЦ Парк Легенд, Автозаводская, 23А к.2 Москва ,
+7 (495) 792-75-83 , smeta@b-h-c.ru
У вас остались вопросы?
Закажите обратный звонок
Или позвоните по нашему телефону и менеджер ответит на все ваши вопросы: