Top.Mail.Ru

Дом в Наро-Фоминском районе

Наро-Фоминск

Стоимость строительства:
7 300 000 ₽
Срок строительства:
210 дней
Получить смету
В кредит за 96 126 ₽ в месяц
Подробные условия

Дом в стиле шале был возведен в Наро-Фоминском районе Подмосковья.

Стены дома построены по комбинированной технологии: первый этаж из керамоблоков, второй из клееного бруса. Это позволило придать конструкции основательность каменного строения и теплоту дерева в спальной зоне второго этажа.

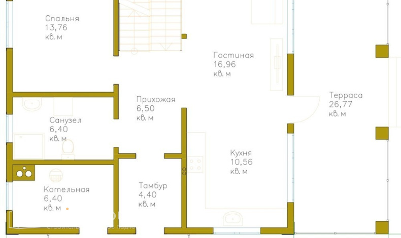
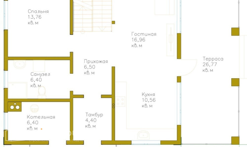
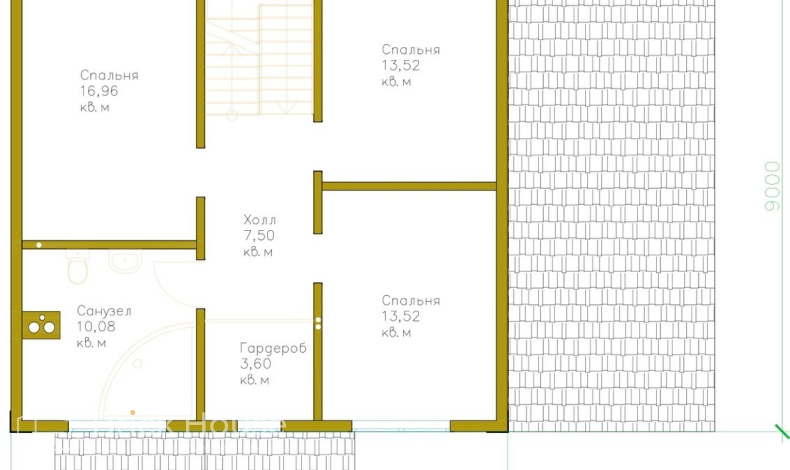
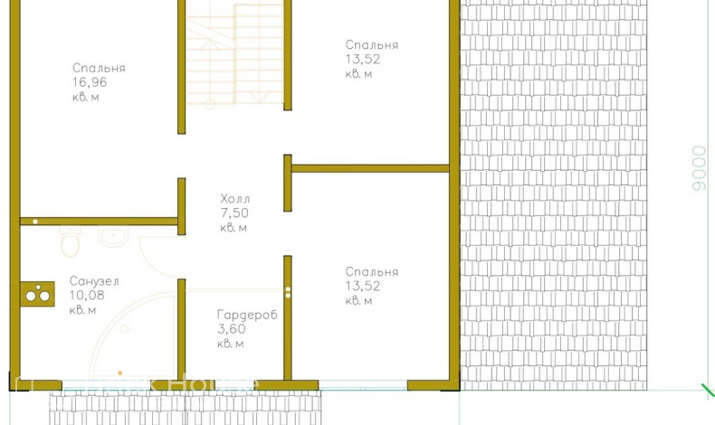
Общая площадь дома 164 м2. На первом этаже есть гостиная, совмещенная с кухней, спальня для гостей, и просторная терраса. кабинет и хозяйственные помещения. На втором этаже расположились 3 спальни, санузел и общий холл.

«Брикхаус»
набережная Марка Шагала, 1к2 Москва ,
+7 (495) 792-75-83 , smeta@b-h-c.ru
У вас остались вопросы?
Закажите обратный звонок
Или позвоните по нашему телефону и менеджер ответит на все ваши вопросы:

Получить смету

Оставьте заявку и мы свяжемся с вами в рабочее время с 08:00 до 20:00

Укажите, пожалуйста, имя
Подтвердите, что вы не робот

Заказать звонок

Оставьте заявку и мы свяжемся с вами в рабочее время с 08:00 до 20:00

Укажите, пожалуйста, имя
Подтвердите, что вы не робот

Изменить планировку

Оставьте заявку и мы свяжемся с вами в рабочее время с 08:00 до 20:00

Укажите, пожалуйста, имя
Подтвердите, что вы не робот

Заявка отправлена

Ваша заявка успешно отправлена! Пожалуйста, ожидайте звонка нашего менеджера!