Top.Mail.Ru

Дом в Обнинском районе

г. Обнинск

Стоимость строительства:
7 500 000 ₽
Срок строительства:
180 дней
Получить смету
В кредит за 98 759 ₽ в месяц
Подробные условия

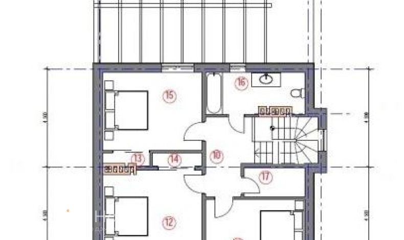
Дом площадью 167 м2 был построен «под ключ» в красногорском районе подмосковья. После проведения исследования почв, совместно с проектировщиками было определен оптимальный тип фундамента для данного строения – свайно-ростверковый с плитой.

После заливки основания и набора им прочности (под ключ заняло 3 недели), было начато возведение стен из пеноблоков.

В качестве материала кровли была выбрана металлочерепица. Это покрытие отличается своей долговечностью и относительно невысокой ценой за материалы и монтаж.

Обустройство теплового контура и внутренняя отделка были завершены в осенне-зимний период, что позволило уже менее, чем через год после начала строительства заселиться заказчику в свой дом.

«Брикхаус»
набережная Марка Шагала, 1к2 Москва ,
+7 (495) 792-75-83 , smeta@b-h-c.ru
У вас остались вопросы?
Закажите обратный звонок
Или позвоните по нашему телефону и менеджер ответит на все ваши вопросы:

Получить смету

Оставьте заявку и мы свяжемся с вами в рабочее время с 08:00 до 20:00

Укажите, пожалуйста, имя
Подтвердите, что вы не робот

Заказать звонок

Оставьте заявку и мы свяжемся с вами в рабочее время с 08:00 до 20:00

Укажите, пожалуйста, имя
Подтвердите, что вы не робот

Изменить планировку

Оставьте заявку и мы свяжемся с вами в рабочее время с 08:00 до 20:00

Укажите, пожалуйста, имя
Подтвердите, что вы не робот

Заявка отправлена

Ваша заявка успешно отправлена! Пожалуйста, ожидайте звонка нашего менеджера!